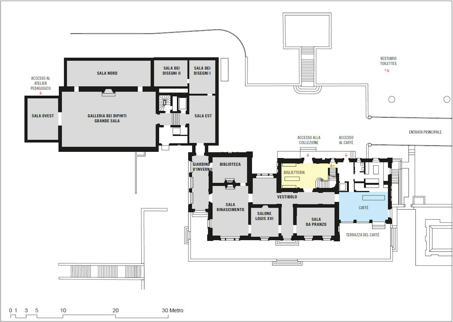
Piantina del museo
Con circa 200 opere esposte in uno spazio circoscritto, la collezione offre al visitatore una vera sintesi dell'arte europea dal XIV secolo agli inizi del XX. Ad accentuare l'eccezionalità di questo percorso concorrono il carattere privato della cornice architettonica e il modo originale in cui le opere sono presentate. Nell'allestire la raccolta, Reinhart rinuncia a disporre i quadri secondo le scuole o i periodi e li riunisce invece in base alle loro consonanze cromatiche. Ancora oggi i maestri antichi sono presentati accanto a quelli moderni. Rispetto ai tempi di Reinhart, tuttavia, gli accostamenti odierni tengono conto anche di corrispondenze comprovate sul piano storico. Questo duplice dialogare delle opere offre uno sguardo insolito sulla collezione, che mette in luce significati inediti.

Piantina del museo da stampare
Il museo è interamente accessibile alle persone con mobilità ridotta.
